拖鏈系統的裝配對場橋運行的影響
2016/11/23 13:27:53點擊:
呂建鋼 上海振華重工(集團)股份有限公司江陰分公司 江蘇省江陰市 214434
摘要:隨著港口機械的不斷發展,更多節能降耗的產品得以廣泛推廣和應用。其中拖鏈系統就是其中一個很好地例子。本文僅以輪胎式集裝箱門式起重機(簡稱場橋)為例,分析了拖鏈系統在場橋制作過程中容易出現的問題以及采取的措施。通過分析研究
總結這些問題,對提高拖鏈系統設計、制造、使用和維護有很好的意義,以確保場橋正常高效的運行。
關鍵詞:港口機械 拖鏈系統 影響因素 措施
中圖分類號:U65 文獻標識碼:A
隨著港口機械的不斷發展,更多節能降耗的產品得以廣泛推廣和應用。其中拖鏈系統就是其中一個很好地例子。其實拖鏈系統由于他的緊湊美觀、低噪音、方便安裝維修等諸多優點早已在如數控機床、機械手等自動化程度高的設備上得到應用。拖鏈外形似
坦克鏈,由眾多的單元鏈接組成,鏈接之間轉動自如。單元鏈節由左右鏈板和上下蓋板組成,拖鏈每節都能打開,裝拆方便,打開蓋板后即可把各種管線放入拖鏈。還可以使用分隔片,將鏈內空間按需要分隔開。原先輪胎式集裝箱門式起重機(簡稱場橋)普遍采用的拖令結構,與拖鏈系統相比存在一些明顯的缺點:譬如拖令結構采用的是懸掛式電纜,不是很美觀和緊湊。另外拖令電纜固定處不但要承擔電纜的自重,還需要承受小車運行過程中以及風力影響下產生的晃動甚至碰撞,這些都很大程度上降低了電纜的使用壽命。隨著港口機械向節能降耗方向發展,結合場橋的使用工況,拖鏈系統在場橋上也得到推廣和應用。目前制造的場橋使用拖鏈系統的已經高達 85%以上。雖然拖鏈系統有諸多的優點,但是如何確保拖鏈系統安全可靠地運行,并不容易,我們必須在整個場橋總裝過程中的各個環節都要加以重視。為此,我們以常用的 IGUS 拖鏈系統在場橋上的應用為例來探求裝配對其正常運行的影響因素,并提出保證措施。
一、 分析拖鏈系統在場橋制作過程中的影響因素
(1) 鋼結構制作階段
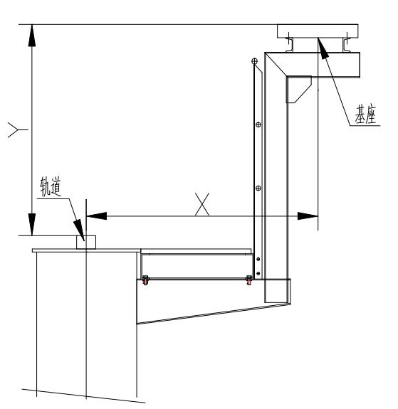
由于該拖鏈系統是以龍門架主結構作為基礎,其基座是以大梁上平面的小車軌道為基準的。如圖所示。每一個基座到大梁軌道的的水平距離(X)以及垂直距離(Y)是通過大梁平臺支撐、七字架以及兩根槽鋼裝配焊接來保證位置尺寸的。該結構形式每臺場
拖鏈槽板是對拖鏈起到支撐和保護作用的部件,它的裝配質量也不容小覷。拖鏈本身是塑料制品,而槽板是由一段一段不銹鋼折邊板拼接而成的,如果裝配不好,槽板不但起不到保護作用反而是破壞。其在裝配過程中經常出現的問題有:1. 槽板內開檔尺寸不符合安裝圖紙要求;2.槽板拼接后的直線度超標;3.固定槽板的沉頭螺栓沒有緊固等。以上這些問題會導致拖鏈無法正常落槽、異常磨損,甚至損壞拖鏈。
(3)拖鏈的拼接階段
場橋上的拖鏈通常有 10 米多長,通常生產廠家在發貨時采用分段裝箱,然后到總裝現場再進行拼接。在現場拼接過程中按理說按圖施工即可,可往往還是出現一些錯誤,如:移動端的前三節裝反;中間鏈節拼接不注意正反等問題。這些錯誤如果不加以認真檢查,直到調試階段才有可能被發現,造成返工困難。若沒能發現鏈節裝反還會發生拖鏈側翻的事故。
(4)浮動頭的組裝階段
浮動頭的組裝主要問題就是固定浮動頭的四組直線軸承存在不同軸、不平行的問題,兩根滑桿不能左右輕松滑動,使得浮動頭卡死,容易使拖鏈與槽板的一側異常磨損。
(5)電纜的敷設階段
場橋的拖鏈電纜有動力電纜,信號電纜、控制電纜等各種規格型號,在敷設階段易出現以下問題:1.不同類型的電纜重量也不同,敷設時若不按圖紙施工,隨意布置,會導致拖鏈內電纜一側偏重;2.電纜在拖鏈內過緊或者過松;3.拖鏈內電纜與分隔片間隙
(1)提高鋼結構制造精度
拖鏈系統裝配的基礎就是鋼結構基座,我們除了從設計上確保基座的強度和穩定性以外,嚴格控制鋼結構制作精度也尤為重要。重點抓好:1.大梁的直線度及拱度在標準范圍之內。按照鋼結構制作標準大梁旁彎≤5mm,小車軌道直線度≤4mm,大梁拱度滿足設計要求,盡可能做到圓順;2.基座與大梁軌道的水平距離以及垂直距離控制在±5mm;3.基座的位置及其水平度。以上這些要求我們可以通過激光經緯儀、卷尺、水平尺、線錘等加以檢查。
(2)注意拖鏈的拼接及槽板的安裝要求
加強拖鏈拼接的檢查,拼接前注意拖鏈的型號、長度、分隔片數量是否符合要求。拼接過程中注意拖鏈前后、左右的拼接順序,拼接結束吊裝之前再次對照圖紙復檢。避免高空不必要的返工。
槽板的裝配我們可以通過樣棒來檢查開檔尺寸,細鋼絲檢查直線度。注意樣棒的尺寸要比拖鏈寬度大 4~6mm。直線度檢查時要以兩端槽板中心為基準,中間槽板通過基座腰形孔來調整,把直線度控制在 5mm 以內,不得有急彎。調整結束后及時按規定力矩緊固螺栓。力矩抽查不少于 50%。
(3)嚴格控制浮動頭的裝配質量
浮動頭的裝配質量最主要從兩個方面加以控制:1 設計方面:主要保證牽引架的剛度、強度和穩定性。它是是保證浮動頭正常工作的基礎;2.直線軸承座、上下連接板等加工的精度以及現場的裝配質量。這些是保證滑桿輕松滑動的前提。另外,還有一些需要注意的地方:牽引架的現場定位尺寸要確保浮動頭在拖鏈槽板中心,最大偏差不要超過 ±5mm;用水平尺檢查浮動頭的水平度;下連接板與槽板的間距要大于 10mm 等。
(4)嚴格按照要求敷設電纜
電纜敷設應該留有 15%的剩余空間,讓內置電纜等可以自由活動,在半徑方向上對拖鏈不產生拉力。直徑差別大的導線應該分開鋪設,重量平均分布,必要時可用分隔片分開。一般在施工過程中僅需要按照電纜的敷設位置圖嚴格施工,選用合適的固定夾加以固定即可。電纜在拖鏈內部要做到松緊合適,通常以電纜在拖鏈彎曲處輕靠外側橫桿即可。另外固定和移動端還要留有約 0.5~1m 余量,便于調整。
(5)調試階段
場橋調試階段的檢查可分為兩步:試車前對整個拖鏈系統進行一次復查。重點復查電纜的固定、槽板螺栓的緊固、浮動頭有無卡滯以及潤滑脂有沒有到位等情況。正式試車時,還要密切監視拖鏈的動態運行情況,是否有異常磨損或異響。發現問題,需及時
停機檢查,整改合格后方可繼續調試。
(6)其他
還有一些細節方面其實也相當重要,譬如:固定端安裝時需要把上平面的定位鐵環去除;固定端的電纜夾不得超出拖鏈高度,必要時移位固定;與電纜接觸的部位都要打磨圓滑或者加保護套。這些小問題都會使拖鏈移動時發生異常磨損,也要加以重視。
三、 總結
拖鏈系統看似簡單的一套系統,但是他的每一道裝配質量都至關重要,否則會大大縮短拖鏈的使用壽命,甚至導致整個拖鏈的報廢。本文僅以場橋常用的 IGUS 拖鏈為例,分析了拖鏈系統的裝配過程容易出現的問題及應采取的措施。通過分析研究總結這些問題,對提高拖鏈系統設計、制造、使用和維護有很好的意義。隨著節能降耗的技術產品在港口機械上的不斷的推廣和應用,相信未來更多的高效節能型的港口機械會得到全世界碼頭的青睞。
參考文獻:
[1] 港口機械和大型鋼結構制造通用技術檢驗標準 QW/GSZA-01-2012
[2] 輪胎式集裝箱門式起重機安裝驗收規范 QW/GSZA-02-2012
[3] 岸邊集裝箱起重機安裝驗收規范 QW/GSZA-03-2012
摘要:隨著港口機械的不斷發展,更多節能降耗的產品得以廣泛推廣和應用。其中拖鏈系統就是其中一個很好地例子。本文僅以輪胎式集裝箱門式起重機(簡稱場橋)為例,分析了拖鏈系統在場橋制作過程中容易出現的問題以及采取的措施。通過分析研究
總結這些問題,對提高拖鏈系統設計、制造、使用和維護有很好的意義,以確保場橋正常高效的運行。
關鍵詞:港口機械 拖鏈系統 影響因素 措施
中圖分類號:U65 文獻標識碼:A
隨著港口機械的不斷發展,更多節能降耗的產品得以廣泛推廣和應用。其中拖鏈系統就是其中一個很好地例子。其實拖鏈系統由于他的緊湊美觀、低噪音、方便安裝維修等諸多優點早已在如數控機床、機械手等自動化程度高的設備上得到應用。拖鏈外形似
坦克鏈,由眾多的單元鏈接組成,鏈接之間轉動自如。單元鏈節由左右鏈板和上下蓋板組成,拖鏈每節都能打開,裝拆方便,打開蓋板后即可把各種管線放入拖鏈。還可以使用分隔片,將鏈內空間按需要分隔開。原先輪胎式集裝箱門式起重機(簡稱場橋)普遍采用的拖令結構,與拖鏈系統相比存在一些明顯的缺點:譬如拖令結構采用的是懸掛式電纜,不是很美觀和緊湊。另外拖令電纜固定處不但要承擔電纜的自重,還需要承受小車運行過程中以及風力影響下產生的晃動甚至碰撞,這些都很大程度上降低了電纜的使用壽命。隨著港口機械向節能降耗方向發展,結合場橋的使用工況,拖鏈系統在場橋上也得到推廣和應用。目前制造的場橋使用拖鏈系統的已經高達 85%以上。雖然拖鏈系統有諸多的優點,但是如何確保拖鏈系統安全可靠地運行,并不容易,我們必須在整個場橋總裝過程中的各個環節都要加以重視。為此,我們以常用的 IGUS 拖鏈系統在場橋上的應用為例來探求裝配對其正常運行的影響因素,并提出保證措施。
一、 分析拖鏈系統在場橋制作過程中的影響因素
(1) 鋼結構制作階段
由于該拖鏈系統是以龍門架主結構作為基礎,其基座是以大梁上平面的小車軌道為基準的。如圖所示。每一個基座到大梁軌道的的水平距離(X)以及垂直距離(Y)是通過大梁平臺支撐、七字架以及兩根槽鋼裝配焊接來保證位置尺寸的。該結構形式每臺場
橋拖鏈側大梁一般平均分布有十五處左右,而且最終每個基座都需要與小車軌道的直線度以及拱度保持基本一致。若水平和垂直距離偏差太大,拖鏈槽板定位尺寸就難以保證,浮動頭自由滑動的距離就會受到限制,很容易導致水平滾輪損壞,加劇拖鏈的磨損。所以基座是整個拖鏈系統的基礎,一旦出現超差現象,會直接影響后道工序的裝配。
拖鏈槽板是對拖鏈起到支撐和保護作用的部件,它的裝配質量也不容小覷。拖鏈本身是塑料制品,而槽板是由一段一段不銹鋼折邊板拼接而成的,如果裝配不好,槽板不但起不到保護作用反而是破壞。其在裝配過程中經常出現的問題有:1. 槽板內開檔尺寸不符合安裝圖紙要求;2.槽板拼接后的直線度超標;3.固定槽板的沉頭螺栓沒有緊固等。以上這些問題會導致拖鏈無法正常落槽、異常磨損,甚至損壞拖鏈。
(3)拖鏈的拼接階段
場橋上的拖鏈通常有 10 米多長,通常生產廠家在發貨時采用分段裝箱,然后到總裝現場再進行拼接。在現場拼接過程中按理說按圖施工即可,可往往還是出現一些錯誤,如:移動端的前三節裝反;中間鏈節拼接不注意正反等問題。這些錯誤如果不加以認真檢查,直到調試階段才有可能被發現,造成返工困難。若沒能發現鏈節裝反還會發生拖鏈側翻的事故。
(4)浮動頭的組裝階段
浮動頭的組裝主要問題就是固定浮動頭的四組直線軸承存在不同軸、不平行的問題,兩根滑桿不能左右輕松滑動,使得浮動頭卡死,容易使拖鏈與槽板的一側異常磨損。
(5)電纜的敷設階段
場橋的拖鏈電纜有動力電纜,信號電纜、控制電纜等各種規格型號,在敷設階段易出現以下問題:1.不同類型的電纜重量也不同,敷設時若不按圖紙施工,隨意布置,會導致拖鏈內電纜一側偏重;2.電纜在拖鏈內過緊或者過松;3.拖鏈內電纜與分隔片間隙
過大或者過小。這些都會導致電纜受力、扭曲或者磨損。
(1)提高鋼結構制造精度
拖鏈系統裝配的基礎就是鋼結構基座,我們除了從設計上確保基座的強度和穩定性以外,嚴格控制鋼結構制作精度也尤為重要。重點抓好:1.大梁的直線度及拱度在標準范圍之內。按照鋼結構制作標準大梁旁彎≤5mm,小車軌道直線度≤4mm,大梁拱度滿足設計要求,盡可能做到圓順;2.基座與大梁軌道的水平距離以及垂直距離控制在±5mm;3.基座的位置及其水平度。以上這些要求我們可以通過激光經緯儀、卷尺、水平尺、線錘等加以檢查。
(2)注意拖鏈的拼接及槽板的安裝要求
加強拖鏈拼接的檢查,拼接前注意拖鏈的型號、長度、分隔片數量是否符合要求。拼接過程中注意拖鏈前后、左右的拼接順序,拼接結束吊裝之前再次對照圖紙復檢。避免高空不必要的返工。
槽板的裝配我們可以通過樣棒來檢查開檔尺寸,細鋼絲檢查直線度。注意樣棒的尺寸要比拖鏈寬度大 4~6mm。直線度檢查時要以兩端槽板中心為基準,中間槽板通過基座腰形孔來調整,把直線度控制在 5mm 以內,不得有急彎。調整結束后及時按規定力矩緊固螺栓。力矩抽查不少于 50%。
(3)嚴格控制浮動頭的裝配質量
浮動頭的裝配質量最主要從兩個方面加以控制:1 設計方面:主要保證牽引架的剛度、強度和穩定性。它是是保證浮動頭正常工作的基礎;2.直線軸承座、上下連接板等加工的精度以及現場的裝配質量。這些是保證滑桿輕松滑動的前提。另外,還有一些需要注意的地方:牽引架的現場定位尺寸要確保浮動頭在拖鏈槽板中心,最大偏差不要超過 ±5mm;用水平尺檢查浮動頭的水平度;下連接板與槽板的間距要大于 10mm 等。
(4)嚴格按照要求敷設電纜
電纜敷設應該留有 15%的剩余空間,讓內置電纜等可以自由活動,在半徑方向上對拖鏈不產生拉力。直徑差別大的導線應該分開鋪設,重量平均分布,必要時可用分隔片分開。一般在施工過程中僅需要按照電纜的敷設位置圖嚴格施工,選用合適的固定夾加以固定即可。電纜在拖鏈內部要做到松緊合適,通常以電纜在拖鏈彎曲處輕靠外側橫桿即可。另外固定和移動端還要留有約 0.5~1m 余量,便于調整。
(5)調試階段
場橋調試階段的檢查可分為兩步:試車前對整個拖鏈系統進行一次復查。重點復查電纜的固定、槽板螺栓的緊固、浮動頭有無卡滯以及潤滑脂有沒有到位等情況。正式試車時,還要密切監視拖鏈的動態運行情況,是否有異常磨損或異響。發現問題,需及時
停機檢查,整改合格后方可繼續調試。
(6)其他
還有一些細節方面其實也相當重要,譬如:固定端安裝時需要把上平面的定位鐵環去除;固定端的電纜夾不得超出拖鏈高度,必要時移位固定;與電纜接觸的部位都要打磨圓滑或者加保護套。這些小問題都會使拖鏈移動時發生異常磨損,也要加以重視。
三、 總結
拖鏈系統看似簡單的一套系統,但是他的每一道裝配質量都至關重要,否則會大大縮短拖鏈的使用壽命,甚至導致整個拖鏈的報廢。本文僅以場橋常用的 IGUS 拖鏈為例,分析了拖鏈系統的裝配過程容易出現的問題及應采取的措施。通過分析研究總結這些問題,對提高拖鏈系統設計、制造、使用和維護有很好的意義。隨著節能降耗的技術產品在港口機械上的不斷的推廣和應用,相信未來更多的高效節能型的港口機械會得到全世界碼頭的青睞。
參考文獻:
[1] 港口機械和大型鋼結構制造通用技術檢驗標準 QW/GSZA-01-2012
[2] 輪胎式集裝箱門式起重機安裝驗收規范 QW/GSZA-02-2012
[3] 岸邊集裝箱起重機安裝驗收規范 QW/GSZA-03-2012
- 上一篇:超級鋁制拖鏈更加輕巧結實 2017/1/16
- 下一篇:拖鏈因素對起重器事故的影響 2016/11/3
